Werktekeningen op hoog detailniveau

Bij Unreal Visuals zijn we gespecialiseerd in het maken van werktekeningen voor interieurs, met een ongeëvenaard detailniveau dat vaak gewenst is op de bouw, maar zelden wordt aangeboden. We richten ons niet op ruwbouw, maar juist op de volledige technische uitwerking van commerciële interieurs. 

Dankzij een efficiënte workflow blijft onze werkwijze rendabel, waardoor we onze focus leggen op commerciële projecten zoals kantoren, winkels, restaurants, dierenklinieken en vooral mondzorgpraktijken. Ons tekenwerk is ontwikkeld om de bouw vlekkeloos te laten verlopen, met duidelijke documentatie en alle benodigde details. 

Onze tekenpakketten omvatten onder andere: 

✅ Wandenplan – Overzicht van alle binnenwanden inclusief maatvoering en materialen. 
✅ Plafondplan – Gedetailleerde uitwerking van plafondconstructies, verlichting en installaties. 
✅ Lichtplan – Posities en types van armaturen voor functionele en sfeerverlichting. 
✅ Vloerenplan – Materialen, patronen en overgangen tussen verschillende vloeren. 
✅ Installatieplan – Integratie van technische installaties zoals elektra, data en HVAC. 
✅ Maatwerk kastenplan – Gedetailleerde uitwerking van op maat gemaakte interieuronderdelen. 

Door onze nauwe samenwerking met interieurbouwers zorgen we ervoor dat maatwerkmeubilair tot op de millimeter correct wordt uitgewerkt. Dit is essentieel bij high-end interieurs, waar precisie het verschil maakt.

Bouwkundige werktekeningen met technische details, vastgehouden door een persoon met een horloge, op een witte ondergrond. Documenten met het logo van Unreal Visuals zichtbaar op de voorgrond.

Dankzij onze gedetailleerde werktekeningen kunnen we deze efficiënt omzetten in hoogwaardige 3D-visuals. Klik hier om een project te bekijken waarin we visuals hebben gemaakt op basis van technisch tekenwerk.

Voor wie werken we?

Onze klanten zijn voornamelijk:
Aannemers – Voor een gestroomlijnde uitvoering met heldere werktekeningen.
Interieurarchitecten – Om concepten technisch uit te werken en bouwklaar te maken.
Projectontwikkelaars – Voor commerciële vastgoedprojecten met een hoge afwerkingsgraad.

Wij zijn gespecialiseerd in commerciële interieurs en hebben een buitengewone expertise in mondzorgpraktijken. Door onze uitgebreide ervaring in deze sector weten we precies wat er nodig is om een functionele en hoogwaardige praktijk te realiseren.

3D pointcloud-scan van een interieur, gegenereerd met LiDAR-technologie. De scan toont een gedetailleerde weergave van een gebouw met muren, ramen en verschillende interieurkenmerken in een gestructureerde puntwolkvisualisatie.
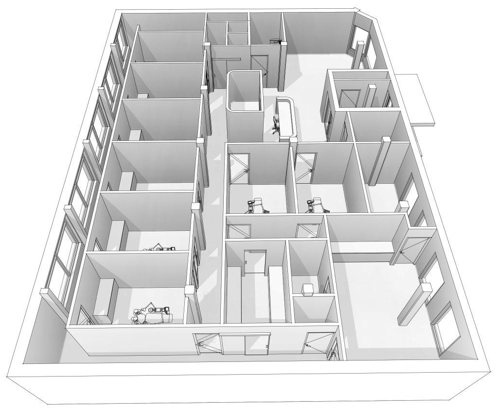
3D-model van een interieurindeling, gebaseerd op een gedigitaliseerde pointcloud en uitgewerkt in Revit. Het model toont een gedetailleerd ontwerp met wanden, ramen, deuren en interieurinrichting, geoptimaliseerd voor bouw- en interieurplanning.

Hoe wij werken: 

van scan tot bouwklare werktekening

1. Start van het project

Elke opdrachtgever heeft een andere werkwijze. Sommige klanten leveren al uitgebreide schetsen aan, terwijl anderen het gehele proces aan ons overlaten. In beide gevallen zorgen wij ervoor dat de werktekeningen voldoen aan alle technische eisen en bouwnormen.

Om maximale nauwkeurigheid te garanderen, voeren wij vaak een digitale 3D-scan inmeting uit. Met deze pointcloud-technologie verzamelen we een enorme hoeveelheid data over de bestaande situatie, waardoor we efficiënt kunnen werken en later in het proces geen verrassingen tegenkomen.

2. 3D BIM-modellering in Revit

We werken met Revit, waarmee alles wat we tekenen direct in 3D wordt gegenereerd. Dit voorkomt fouten die vaak voorkomen bij traditionele 2D-tekeningen, zoals inconsistente doorsneden en plattegronden.

Daarnaast werken we regelmatig samen in een BIM-model (Building Information Modeling), waarin meerdere partijen hun eigen modellen aanleveren. Dit zorgt ervoor dat alle technische disciplines perfect op elkaar aansluiten, waardoor fouten en extra kosten in de bouwfase worden voorkomen.

3. Oplevering van de werktekeningen

Onze werktekeningen worden meestal digitaal aangeleverd in PDF en indien gewenst in DWG. Daarnaast kunnen we ook op grootformaat printen en ervoor zorgen dat de tekeningen direct op de bouw aanwezig zijn.

Omdat geen enkel project hetzelfde is, bieden we altijd maatwerk, afgestemd op de specifieke behoeften van de opdrachtgever.

Waarom kiezen voor Unreal Visuals?

Hoog detailniveau – Wij werken met precisie die zelden wordt aangeboden in de interieurbouw.
Snelle en efficiënte werkwijze – Door een slimme workflow blijven we flexibel en rendabel.
Samenwerking met alle betrokken partijen – Wij geloven in een nauwe samenwerking met aannemers, interieurarchitecten en installateurs.
BIM-expertise & 3D-modeling – Geen verrassingen tijdens de bouw dankzij een volledig gecontroleerd model.
Persoonlijke aanpak – Klein team, groot bereik. Wij bijten ons vast in elk project.

Wil je een interieurproject technisch laten uitwerken met maximale precisie? Neem dan contact met ons op en ontdek hoe wij je kunnen helpen.